Contact Us

PROPERTY TYPE
: RESIDENTIAL VILLAS
LOCATION
: MAGADI ROAD
PROJECT AREA
: 1 Acres
PROPERTY STATUS
: Under Construction
CLASSIFICATION
: 3bhk
POSSESSION
: Mar-2023
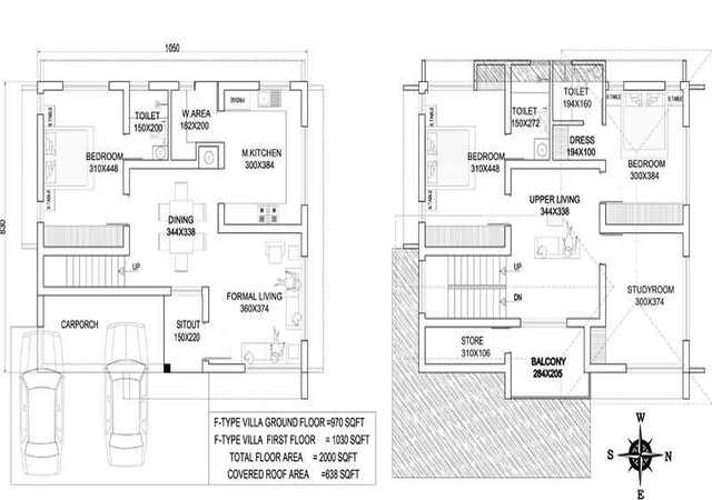
AREA RANGE
: 2000 - 2100 SQFT
BASE PRICE
: 95 L - 99.75 L
NO. OF UNITS
: 37 units
RESIDENTIAL VILLAS FOR SALE

MEGHA VILLAS - MAGADI ROAD

MEGHA VILLAS

Introduction: Welcome to Megha Garden Valley Villas, an abode of magnificent Villas in Kochi with all modern features required for a contemporary lifestyle. These Residential Villas in Kochi flaunts a resort like environment. It is now easy to experience how modern comforts blend seamlessly with magnificent ambience and how lifestyle amenities combine with refreshing green views. Megha Garden Valley in Kakkanad ensures privacy and exclusivity to its residents. The reviews of Megha Garden Valley clearly indicates that this is one of the best Residential property in Kochi. The floor plan of Megha Garden Valley enables the best utilization of the space. From stylish flooring to spacious balconies, standard kitchen size and high-quality fixtures, every little detail here gives it an attractive look. The Megha Garden Valley offers 3 BHK luxurious Villas in Kakkanad. The master plan of Megha Garden Valley comprises of 10 meticulously planned Villas in Kochi that collectively guarantee a hassle-free lifestyle. The price of Megha Garden Valley is suitable for the people looking for both luxurious and affordable Villas in Kochi. So come own the ritzy lifestyle you’ve always dreamed of. Amenities: The amenities in Megha Garden Valley include CCTV Cameras, Community Hall, Gymnasium, Play Area, Car Parking, Gated community, 24Hr Backup Electricity, Security, Covered Parking and 24Hr Water Supply. Location Advantage: Location of Megha Garden Valley Villas is ideal for those who are looking to invest in property in Kochi with many schools, colleges, hospitals, recreational areas,parks and many other facilities nearby Kakkanad. Address: The address of Megha Garden Valley is Near Infopark, Kakkanad, Kochi, Kerala, INDIA..

MEGHA VILLAS - AMENITIES

S.No. BHK Area (SQ. FT.) Price/Sq.Ft Base Cost
1 3BHK 2000 ₹ 4750 ₹ 95 L
2 3BHK 2100 ₹ 4750 ₹ 99.75 L

BANK APPROVAL

LEGAL APPROVAL

HOT

NEW LISTINGS IN MAGADI ROAD

MEGHA BUILDERS

ABOUT BUILDER

Welcome to Megha Garden Valley Villas, an abode of magnificent Villas in Kochi with all modern features required for a contemporary lifestyle. These Residential Villas in Kochi flaunts a resort like environment. It is now easy to experience how modern comforts blend seamlessly with magnificent ambience and how lifestyle amenities combine with refreshing green views. Megha Garden Valley in Kakkanad ensures privacy and exclusivity to its residents. The reviews of Megha Garden Valley clearly indicates that this is one of the best Residential property in Kochi. The floor plan of Megha Garden Valley enables the best utilization of the space. From stylish flooring to spacious balconies, standard kitchen size and high-quality fixtures, every little detail here gives it an attractive look. The Megha Garden Valley offers 3 BHK luxurious Villas in Kakkanad. The master plan of Megha Garden Valley comprises of 10 meticulously planned Villas in Kochi that collectively guarantee a hassle-free lifestyle. The price of Megha Garden Valley is suitable for the people looking for both luxurious and affordable Villas in Kochi. So come own the ritzy lifestyle you’ve always dreamed of.

BEST DEALS