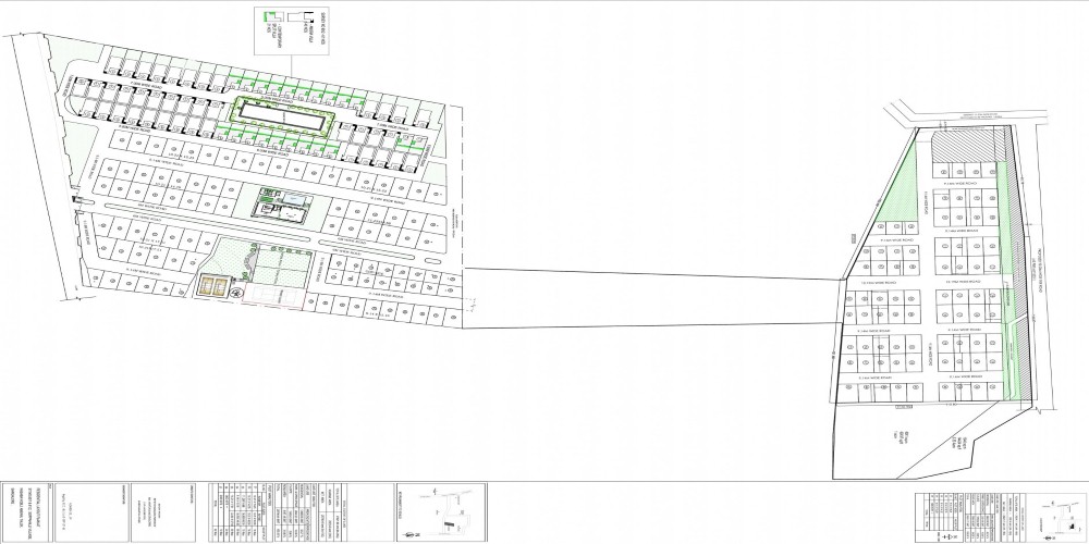
Aratt Grand Town, is a sprawling luxury enclave of magnificent Villas in Bangalore, elevating the contemporary lifestyle. These Residential Apartments in Bangalore offers you the kind of life that rejuvenates you, the one that inspires you to live life to the fullest. Aratt Grand Town by Aratt Builder in Chandapura Anekal Road is meticulously designed with unbound convenience & the best of amenities and are an effortless blend of modernity and elegance. The builders of Aratt Grand Town understands the aesthetics of a perfectly harmonious space called ‘Home’, that is why the floor plan of Aratt Grand Town offers unique blend of spacious as well as well-ventilated rooms. Aratt Grand Town offers 3 BHK luxurious Villas in Bangalore. The master plan of Aratt Grand Town comprises of unique design that affirms a world-class lifestyle and a prestigious accommodation in Villas in Bangalore. Amenities: The amenities in Aratt Grand Town comprises of Landscaped Garden, Indoor Games, Earthquake Resistant, Swimming Pool, Gymnasium, Play Area, Intercom, Rain Water Harvesting, Club House, Tennis Court, Badminton Court, Car Parking, Fire Safety, Jogging Track, 24Hr Backup Electricity, Cricket Court, Drainage and Sewage Treatment, Meditation Hall, Vaastu / Feng Shui, Multi-purpose Hall, Outdoor games, Security and Yoga, Aerobics and Meditation Room. Location Advantage: Location of Aratt Grand Town is a major plus for buyers looking to invest in property in Bangalore. It is one of the most prestigious address of Bangalore with many facilities and utilities nearby Chandapura Anekal Road . Address: The address of Aratt Grand Town is APC Circle, Chandapura Anekal Road, Soppahalli, Bangalore, Karnataka, INDIA.. Bank and Legal Approvals: Bank and legal approvals of Aratt Grand Town comprises of Axis Bank, Punjab National Bank and ICICI Bank, BMRDA.
GRANITE OR EQUIVALENTS FOR FLOORING. GRANITE OR EQUIVALENTS FOR TREADS & RISERS. PLASTIC EMULSION PAINT OF BERGER OR EQUIVALENTS FOR WALLS AND CEILING.
